秋田の不動産は有限会社ソピアホーム|秋田県秋田市|不動産|賃貸|売買|空き家管理|リフォーム|新築|住宅|住まい

REAL ESTATE DETAIL
不動産情報詳細

横山金足線近く

中古住宅

秋田市金足小泉字潟向

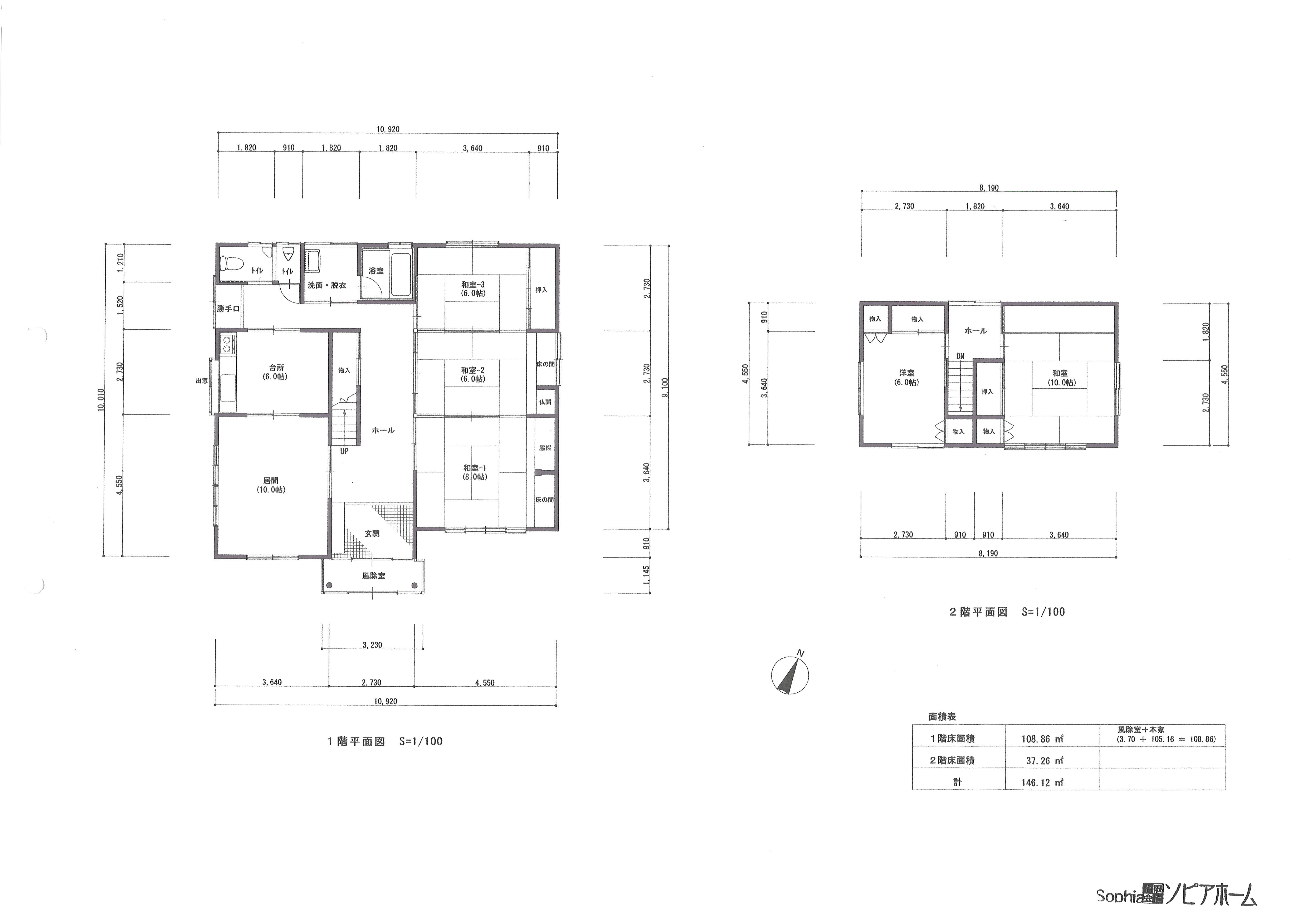
販売価格 850万円 築年月 1989 年 1月
土地面積 702.5 ㎡(212.50 坪) 建物面積 142.42 ㎡(43.08 坪)
所在地 秋田市金足小泉字潟向99-2 間取り 6DK

この物件についてのお問い合わせ

外観 間取り
外観 間取り図

物件詳細情報

建物構造 木造亜鉛メッキ鋼板葺2階建 接道状況 東側:私道2.7m
地目 宅地 用途地域 第一種低層住居専用地域
学区 金足西小学校
秋田北中学校
現況 空家
引渡し 即時 取引態様 仲介
備考 ・上記土地面積のほか、私道持分有り
・景観条例・建築基準法22条区域
・立地適正化計画(都市機能誘導区域外、居住誘導区域外)
・宅地造成等規制法

この物件についてのお問い合わせ

物件設備情報

  • 上水道
  • 下水道
  • プロパンガス

物件案内図

その他の物件画像

  • 画像
  • 画像
  • 画像
  • 画像
  • 画像
  • 画像
  • 画像
  • 画像
  • 画像
  • 画像
  • 画像

この物件についてのお問い合わせ

ページトップ

COPYRIGHT © SOPHIAHOME Co,.ltd ALL RIGTS RESERVED.