秋田の不動産は有限会社ソピアホーム|秋田県秋田市|不動産|賃貸|売買|空き家管理|リフォーム|新築|住宅|住まい

REAL ESTATE DETAIL
不動産情報詳細

中古住宅

秋田市新屋田尻沢東町

販売価格 900万円 築年月 1997 年 9月
土地面積 176.46 ㎡(53.37 坪) 建物面積 112.37 ㎡(33.99
坪)
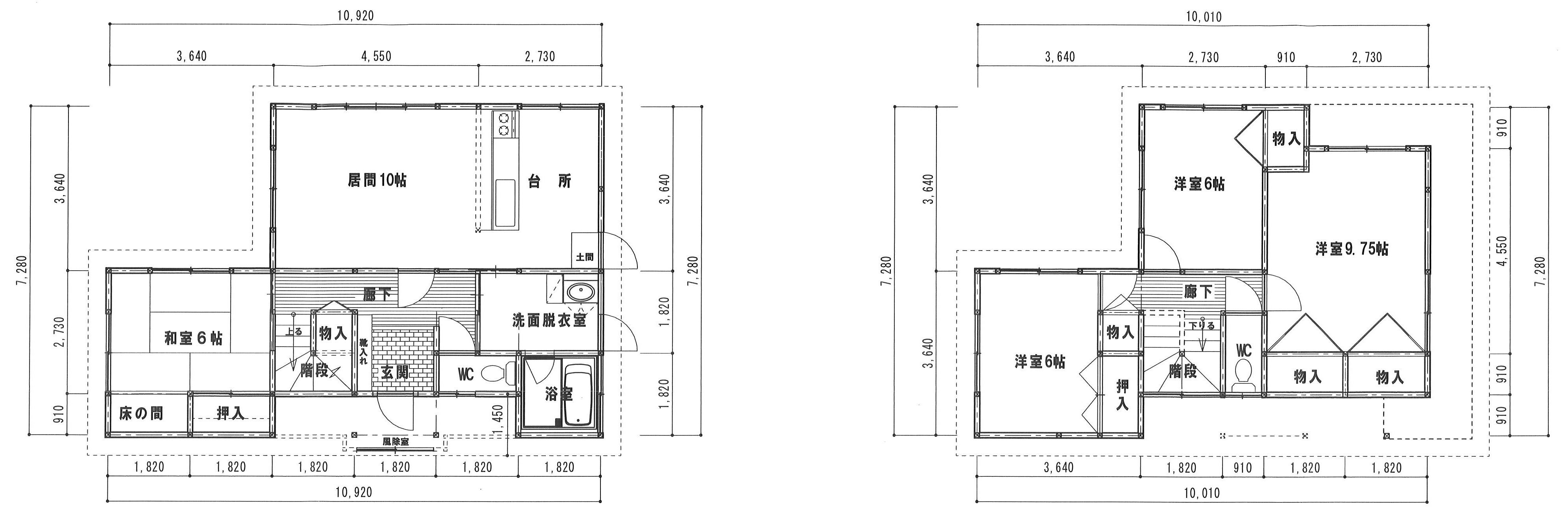
所在地 秋田市新屋田尻沢東64-38 間取り 4LDK

この物件についてのお問い合わせ

外観 間取り
外観 間取り図

物件詳細情報

建物構造 木造亜鉛メッキ鋼板葺2階建 接道状況 北側:公道6m、東側:公道12m
地目 宅地 用途地域 第一種低層住居専用地域
学区 日新小学校
秋田西中学校
現況 空家
引渡し 即時 取引態様 仲介
備考 ・建築基準法22条区域
・景観条例
・立地適正化計画
  (居住誘導区域内・都市機能誘導区域外)
・宅地造成等規制法
・盛土規制法

この物件についてのお問い合わせ

物件設備情報

  • 上水道
  • 下水道
  • 都市ガス

物件案内図

その他の物件画像

  • 画像
  • 画像
  • 画像
  • 画像
  • 画像
  • 画像
  • 画像
  • 画像
  • 画像
  • 画像
  • 画像

この物件についてのお問い合わせ

ページトップ

COPYRIGHT © SOPHIAHOME Co,.ltd ALL RIGTS RESERVED.